NORD, H-URI - 2 CAMERE, PARTER, DECOMANDAT
Rm. Valcea, Str. Constantin Brancusi
Pret: 60.000 Euro
FARA COMISION LA CUMPARATORI!
Apartament de 2 camere la parter, ideal pentru varstnici sau familii cu copii!
Amplasat in cartierul Nord, la intersectia strazilor N. Titulescu si C. Brancusi, in H-uri, apartamentul beneficiaza de liniste, spatii verzi, la 2 pasi de Gradinita Nord 2, Colegiul National de Informatica Matei Basarab si Liceul de Arte, Victor Giuleanu.
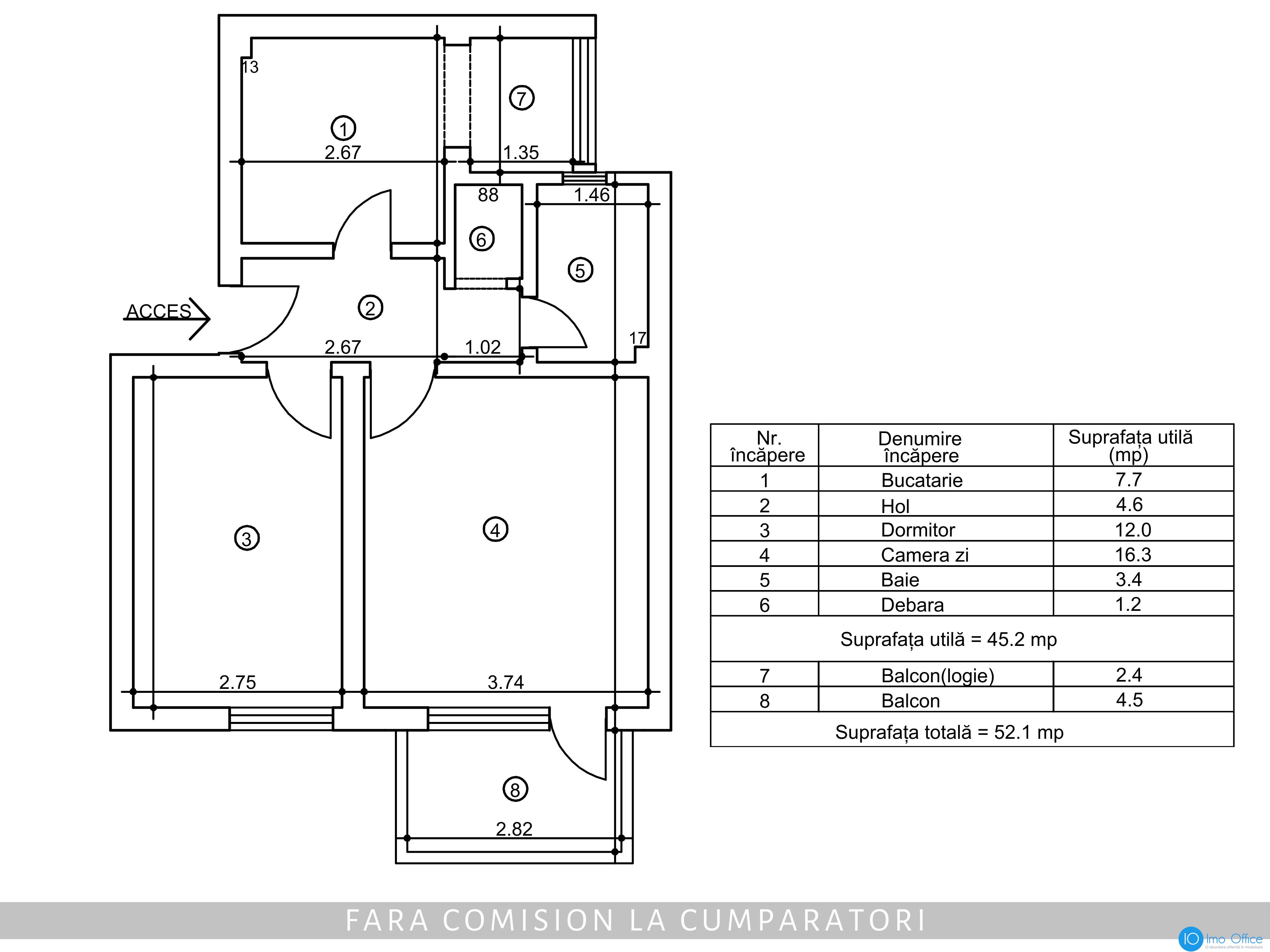
Proprietatea este situata la parter, are 2 camere, o suprafata de 52 mp, bucatarie bine proportionata, baie cu geam si se afla intr-un bloc anvelopat, fiind potrivita atat pentru persoane in varsta cat si pentru familii cu copii.
Contactati-ma pentru detalii si programarea unei vizionari!
Alexandru Olaru
0746.081.380
Aceasta oferta imobiliara este gestionata exclusiv de Imo Office Alexandru Olaru si este deschisa spre colaborare catre toate agentiile imobiliare!